Magnífica Casa a cuatro vientos en Segur de Calafell Centro
Segur De Calafell (Centro) - REF. 1000

118,06 m2

4

2

2
venta: 439.000 €
antes: 452.000 €
Descripción

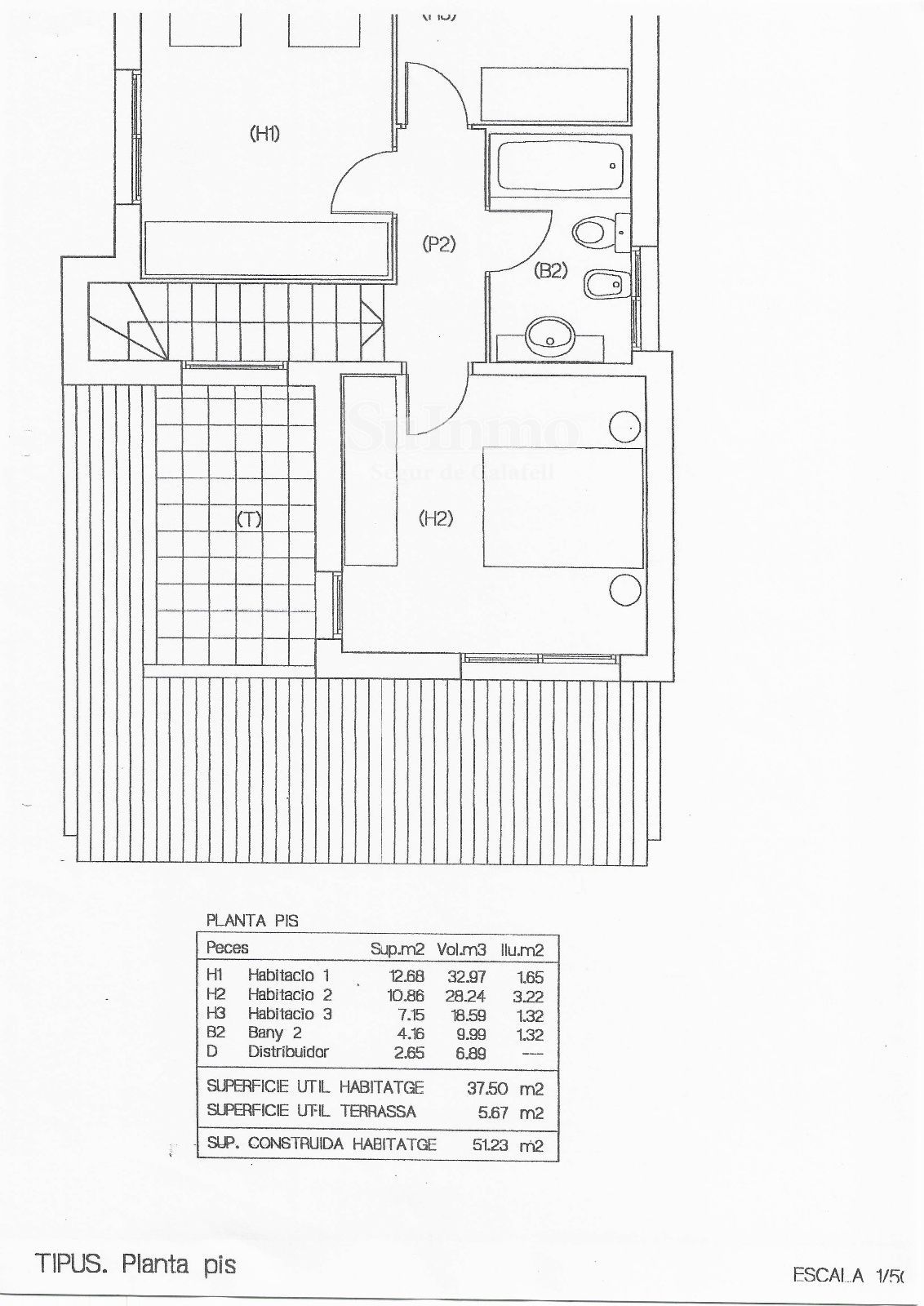
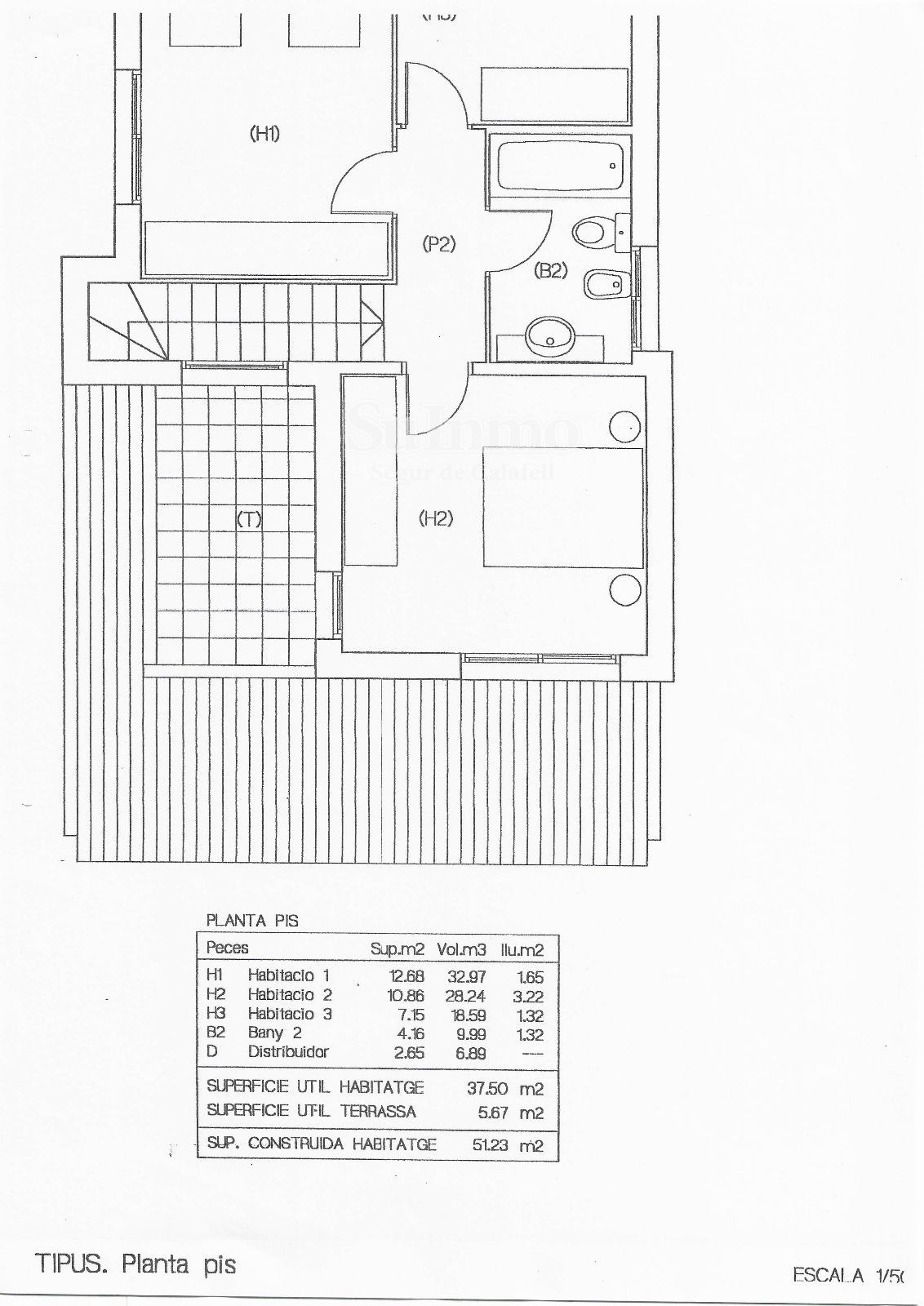
Además de haber sido bien mantenida y actualizada con buenos materiales, para entrar a vivir, esta casa ofrece una calidad de vida perfecta. Situada en una calle muy tranquila y céntrica, permite a los propietarios estar cerca de todos los servicios y de la playa. Distribuida en dos plantas, la primera acoge un recibidor, una cocina equipada, una habitación, un baño completo, un pequeño trastero y un salón-comedor espacioso con chimenea. En la planta de arriba nos encontramos con tres habitaciones, una de ellas con una gran terraza desde donde se ve el mar, y un baño completo. El exterior, decorado con una preciosa palmera, ofrece una cocina de verano con barbacoa, una zona para aparcar dos automóviles, y otro área donde relajarse y tomar el sol. Es complicado describir lo que uno siente cuando se encuentra en ella, venga y cuéntemelo usted.

Características
Precio Venta 439.000 €
Precio/m² 3.718
I.B.I. 762 €
Año de construcción 2000
Cédula de Habitabilidad 0Q1LCJ3HET6VVWPQLTGH9U5SBFAYQ1FR
Construidos 118,06 m2
Parcela 204 m2
Dormitorios 4
Baños 2
Cocina Amueblada
Terraza
Aire acondicionado
Garaje
Adaptado
Calificación Energética (C) VER
Luz
Gas
Agua
Acceso discapacitados

Visita Virtual

Vídeos
Ubicación
La dirección del inmueble es aproximada.
Escalas de eficiencia


Eficiencia Emisiones: 12,00
Eficiencia Consumo: 72,00
72
12

Tu agente
Álvaro Cabezas Atienza (Venta)
Contáctanos

Si deseas más información sobre esta propiedad, por favor, rellena el formulario.

 Sí, he leído y/o acepto las Condiciones de uso y la Política de privacidad
Inmuebles similares:
 
510.000 €
Ref. 1168  193 m2  5  2

La vivienda se asienta sobre una parcela de 453 m² y cuenta con una superficie construida de 193 m², distribuidos en dos cómodas plantas que ofrecen amplitud, funcionalidad y múltiples posibilidades. CHT00210126001

 
475.000 €
Ref. 1084  261 m2  5  2
Chalet Independiente en venta en Segur De Calafell, con 261 m2, 5 habitaciones y 2 baños, Piscina, 2 plazas de Garaje, Trastero y Calefacción Bomba de calor.
Inmobiliaria en Segur de Calafell
Nº AICAT: 13222 - Colegiado APAI-415

CONTÁCTANOS

Antoni Almazor 2
43882 Segur de Calafell